CASA EN VENTA $13’000,000.00 Enrique Rébsamen Col. Narvarte Poniente C.P.03020, entre Morena y Esperanza, Alcaldía Benito Juárez

308 m2 Terreno

Excelente Ubicación, con uso de Suelo Habitacional H4/20

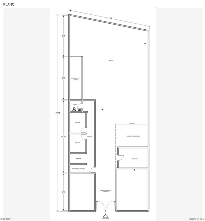
Con un frente de 11.5 m con una profundidad de 26.7 m

 

Hay una construcción con 6 habitaciones y 3 baños

En dos niveles

Patio posterior

Lote medianero ubicado en la acera este de la calle Rébsamen en el tramo comprendido entre la calle esperanza y avenida la morena, contando así con un solo frente.

Vías de Acceso e importancia: Viaducto presidente Miguel Alemán Valdés

Al Norte, Av. División del Norte Al Suroeste, Eje 4 Sur Xola Al Sur y Eje 1 Poniente Av. Cuauhtémoc Al Este.

Como principales vías de acceso al inmueble

 

NOTAS IMPORTANTES:

· El precio de venta del inmueble es más gastos de escrituración que serán calculados por la notaría al formalizar la operación.
· Tenemos toda la documentación necesaria para la venta del inmueble.
· El inmueble está libre de gravamen
· El mobiliario no está incluido en el precio
· En el precio no se incluye gastos referentes a la tramitación de un crédito hipotecario NOM -247-SE-2021 Contrato de Adhesión registrado en el Registro Público de Contratos de Adhesión de la Procuraduría Federal del Consumidor, bajo el número 3926-2022, de fecha 25 de agosto de 2022, de conformidad con el segundo párrafo del artículo 73 de la Ley Federal de
Protección al Consumidor.
Todos los documentos que se muestran aquí son de uso exclusivo de Piso 59 con la autorización otorgada por PROFECO.
Tel y Whats 55.7665.5959
informes y quejas: piso59@gmail.com
www.piso59.com.mx y redes sociales:
@somosPiso59 Instagram y X
https://www.facebook.com/piso59inmobiliaria/
https://www.linkedin.com/company/piso-59/
@piso59inmobiliaria
https://www.piso59.com.mx/aviso-de-privacidad/gr
https://www.threads.net/@somospiso59
USO SUELO REBSAMEN.pdf
Documento Adobe Acrobat [242.9 KB]

Te invitamos a conocer nuestra página http://www.piso59.com.mx #somospiso59

Una publicación compartida de Piso59 (@somospiso59) el

Versión para imprimir | Mapa del sitio
© PISO59 Asesores Inmobiliarios